春风十里,不及有你——海容模块乡村墅院!

2017-05-18

乡美,房更美,美轮美奂的乡间别墅,有天有地,有庭有院,有花有草有逸致,有滋有味有情怀。廊下翻书,读的是日出月落,堂前烹茶,品的是知交情浓。



这里没有城市的忙碌,鲜有市井的纷扰,如同一本翻开的童话书,时光流经这里,都会变得缓慢而斑斓。


乡村别墅 ,是最自然的山野味道!


你想不想回到自己的乡村,在自家宅基地上,建一栋美美的乡村别墅,贴近自然,开窗闻花香,举头赏新绿……



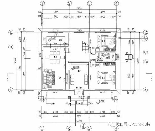
占地尺寸:13.2m*10.5m

建筑层数:二层

建筑面积:277.2㎡

综合造价(毛坯房成型):22万(包含模块、钢筋、混凝土、抹面及人工)

海容建筑节能模块用量:7万



一层平面图


一层别墅户型:堂房、客厅、卧室x2、厨房、餐厅、卫生间




二层平面图


二层别墅户型:小客厅、卧室x3、储藏间(更衣室)、卫生间、露台


久违了的自然生活,诗意地栖居在大地上。春风十里,不及有你——乡村墅院,撩动内心欢喜,阳光暖一点,再暖一点,天再蓝一点,再蓝一点,日子慢一些,再慢一些。回到乡间,只闻花香,不谈悲喜,喝茶读书,不争朝夕。


选择海容模块建房的原因


﹙1﹚ 海容模块自身强度大,导热系数小仅为0.028w/m·k、达到B1级防火要求;

 ﹙2﹚ 模块尺寸精确稳定、规格配套齐全;

 ﹙3﹚ 模块墙体结构保温、防火、抗震、防渗、防脱落、耐腐蚀,安全性能高;

 ﹙4﹚ 建造过程中完全取代墙体各种砌块、浇筑模板、外墙保温材料,内外双层保温,保温效果好;

 ﹙5﹚ 施工过程无建筑垃圾产生,实现现场文明施工;

 ﹙6﹚ 建造周期短、综合性价比高,施工简单、操作灵活,满足建筑保温结构一体化技术要求。

抹面处理